Conversions

We have designed and overseen the conversion of hundreds of buildings, including loft conversions, garage conversions, barn conversions, listed building conversions, office to residential conversions and many more.

Expertise and attention to detail is crucial to conversions, since planning policy is highly tailored and varies greatly depending on context. Various prior approval and PD legislation has, in principle, facilitated the conversion of many types of building, but the application of these rules to specific projects is a highly skilled speciality. One that we have been honing for more than 20 years.

In some cases, building work near public drainage infrastructure may require Build Over Agreement drawings to obtain approval from the relevant water authority.

Call, message or WhatsApp us on 07865 259181 for a tailored steer.

Our Services

Conversion Plans

20 years + expertise in loft, garage, barn, listed, warehouse and all other types of building conversion. Most home conversions gain permission easily and can add significant value to your home. We offer practical, bespoke advice shaped to your goal and budget. Recent legislation has facilitated many new types of conversion opportunities. Understanding and applying the detail is key.

Planning Advice

We are frequently contacted by homeowners, builders and developers in a panic who had assumed that their building works were lawful, but alas now know better. Exceptions and exemptions to the rules abound. Some of our happiest (and most relieved!) clients are of this sort.

Measured Surveys

Our survey packages are used by hundreds of law firms, agents, property owners, and property agents throughout the UK. Every survey is bespoke and tailored to the job at hand.

Our packages are typically delivered within 24 hours

Aftercare

Extensive and ongoing support is provided before, during and after a project's completion.
After-sales support is crucial.

Our clients frequently request an array of bolt-on services. We are always pleased to assist.

Garage Conversions

Most garage conversions stand a good chance of obtaining planning permission under normal household consent. So unless there's a particular parking or conservation issue, we are generally in favour of applying for planning permission.

Garage conversions can be a great way of achieving a playroom or additional living space for relatively little cost, and can often end up adding a great deal to the value of your home. Depending upon the job at hand, we're advocates of building a shed in the garden, de-cluttering the garage and the house, revising the internal layout and converting the garage. This is often where the “low hanging fruit” resides.

Sometimes clients like to keep the front portion of the garage for bikes and tools, and open up the rear piece of the garage for additional living space, which can typically done very cheaply.

What's really needed is a holistic, practical approach, and an understanding of what you're trying to achieve (often more space but without compromising on storage).

Call us to see how the rules apply in your specific case.

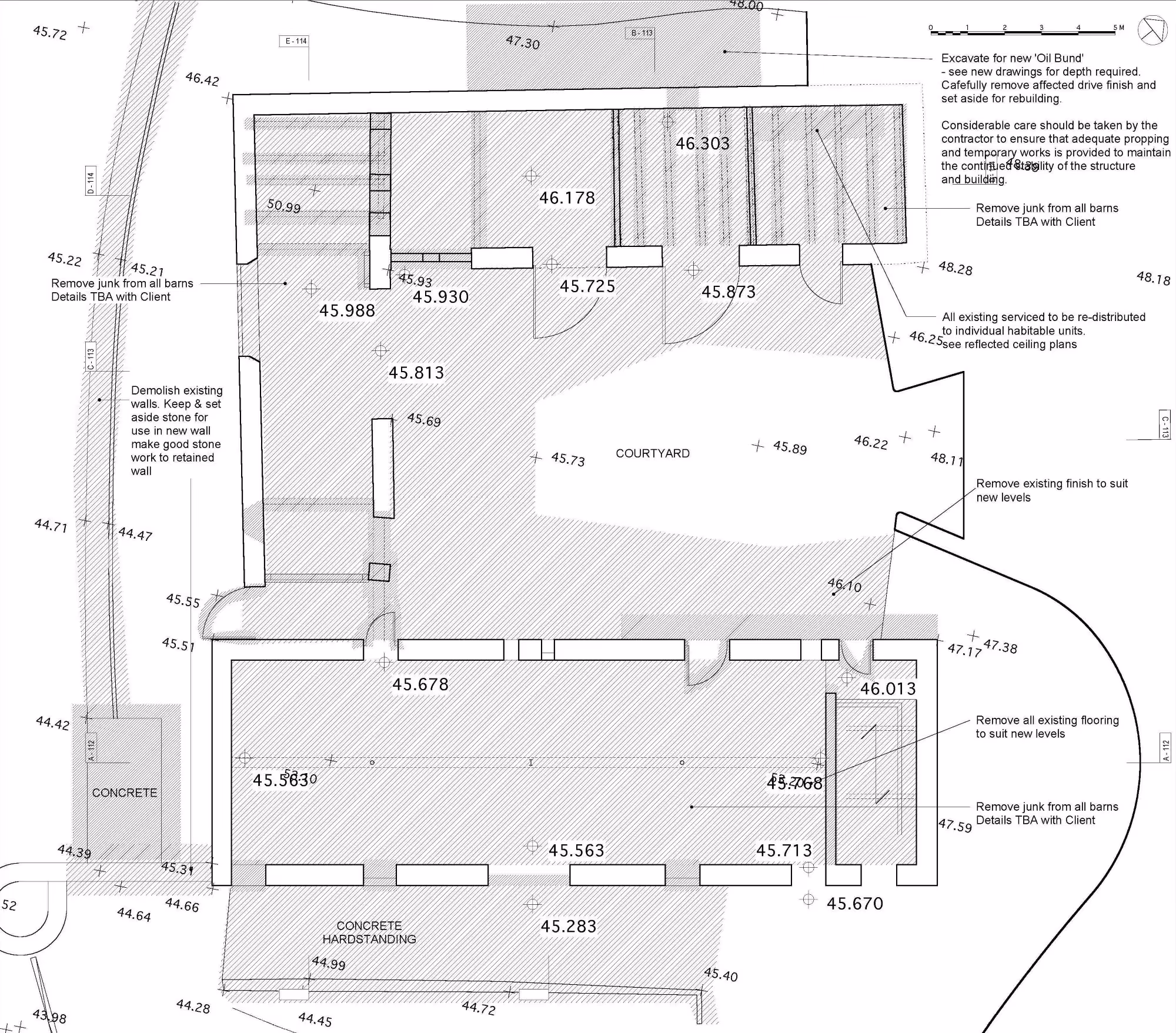
Barns and Other Conversions

The government introduced a raft of genuinely ground-breaking planning legislation in 2013. Since this date, we have been helping developers convert office buildings into large multi-flat schemes, up to 200 flats per building. In one case we acquired a consent that increased the value of a former office building from £2.1m to £3.85m over a period of 6 months, and assisted the sale and practical conversion of the same on behalf of the new owner.

Later rafts of legislation have opened up opportunities to convert barns, warehouses and all sorts of other under-used buildings into homes.

Barn conversions can make magnificent homes, often with very little work to the outside.

Call, message or WhatsApp us on 07865 259181 for a tailored steer.

View our Conversions Services

Gallery

View our Loft Conversions services
View More

"Much appreciated - really impressed with the turnaround time."

Colliers International
City of London EC2V

"Just Plans are excellent, and will save you time and money across a home improvement project."

Andrew Mellish
Property Home Services Ltd
North London

"Thank you for making things so simple. It all seemed so complicated last time round."

Mr Warwick
West Sussex

"Brilliant work. The service has been absolutely fantastic."

M Khetia
North London

"I cannot believe I can finally build my loft extension after so many refusals! I am beyond delighted."

B Lefort

"We chose you because of your vision. You saw how our home could be. We are delighted with the results."

Mr and Mrs Yaari
North London

"The plans are so good!"

Alan Oakley
Bennett Oakley Solicitors
West Sussex

"Thank you again for being so accommodating, efficient, and speedy."

Sean Sherman
Castles Solicitors
West Sussex

"Your turnaround time of under 24 hours was most impressive!"

Dutton Gregory
Hampshire

The “small print”…

Just Plans is a Limited Company Companies House reference 10113657

By “advice” or “consultancy”, we mean that we are generally happy to offer provisional thoughts and suggestions to homeowners and other existing or potential clients, based on our experience of having submitted hundreds of planning applications for many different properties for many different councils over more than a 20 year period.

Because of this and other similar experience, many people who are considering a project find it useful to talk us through their plans. At our reasonable discretion, we are generally happy to spend some unpaid time listening and walking people through the general process and the typical different options that they might like to consider.

Any such advice or consultancy is limited to provisional and general guidance. The risks and rewards associated with any project or decision exclusively remain the homeowner’s or the developer’s, unless we have explicitly stated otherwise in writing and have been paid to share in such risk or such responsibility.

Likewise, we assume no liability for taking on any “due diligence”, any CIL negotiation, or accurately predicting the Local Authority’s decisions, and which includes those pertaining to lawful development certificates.  
Unless explicitly stated otherwise in writing, and unless we have received payment for the same, we do not agree to act as Principal Designer, or as any Dutyholder, or similar, whether or not it forms part of RIBA or RICS or any similar legislation.
Unless otherwise agreed in writing, we always act exclusively as our clients’ agents, and under their authority. We agree jobs on a case by case basis, always evidenced in writing, and never on a merely verbal basis.

Footnote 1.
Re CGIs and imagery
The images contained within our website typically use a combination of photographs and drawing software. CGIs may not be identical to the as-built layouts.

For full terms of service and for how our plans should be used, refer also to the right hand margin of any plan supplied.